Intro
Selected works
Intro
Selected works
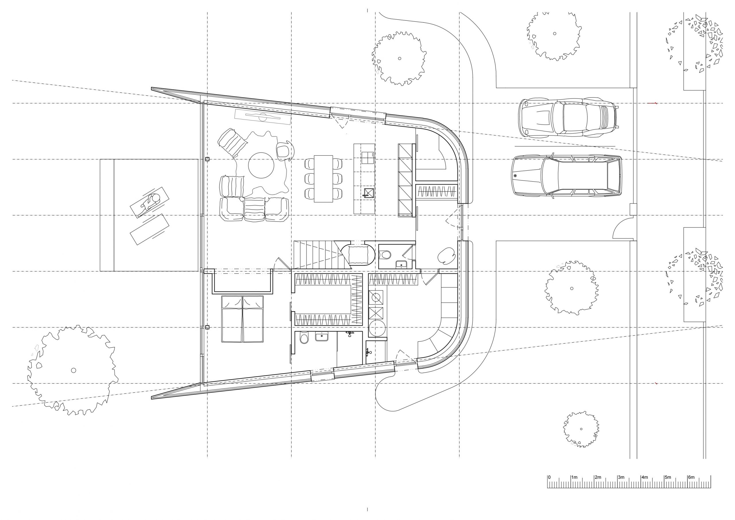
KISS, Family house
Čunovo / Bratislava SK
Realizácia: 2015
Architekt: Sebastian Nagy